Villa Favre

  • Location: Lausanne, Switzerland
  • Client: Private
  • Program: Private house
  • Size: 300 m2
  • Year: 2020
  • Status: Completed
  • Collaborators: Meyer architecture, Nicolas Sedlatchek (photos)
  • Team: Ted Schauman, Jonas Nordgren, Kristian Kontula, David Monteiro
image-1045
Differently angled facades prevent looking into the adjoining yard

A two-family house with privacy

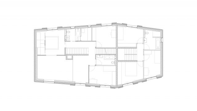
Villa Favre is a two-family house located in Le Mont-sur-Lausanne, Switzerland, a northern district of Lausanne on Lake Geneva. The house comprises a 200-square-meter residence for the Favre family and a 100-square-meter unit that is rented out long-term. SNA made these allocations legible in the footprint of the house, which assumes an irregular hexagonal shape. The decision creates privacy for the two families, in turn. Separate entrances face away from one another, and differently angled windows prevent looking into the adjoining yard.

image-1053
image-1048
Upstairs windows can be closed for the night, like a metaphor: the building closes its eyes when it goes to sleep

The facade further expresses a two-part interior configuration. The ground floors of both residences are public areas for eating, working, and socializing, whereas the upper floors are meant for rest and relaxation. Shutters fitted to the upstairs windows can be closed for the night, like a metaphor: the building closes its eyes when it goes to sleep. Exterior materials further illustrate the floors’ different functions, and SNA’s banding of striated concrete and wood evokes the wooded location

image-1159
image-1046
image-1057
Green roof terrace with stunning views

A generous roof terrace with a garden tops the composition, where the Favre family can reside and get stunning views of the gentle hillside site and the wider surroundings.

image-1233
image-1055
image-1056

Project images